SUBURBAN HOUSES
Family villas, Germany, 2007
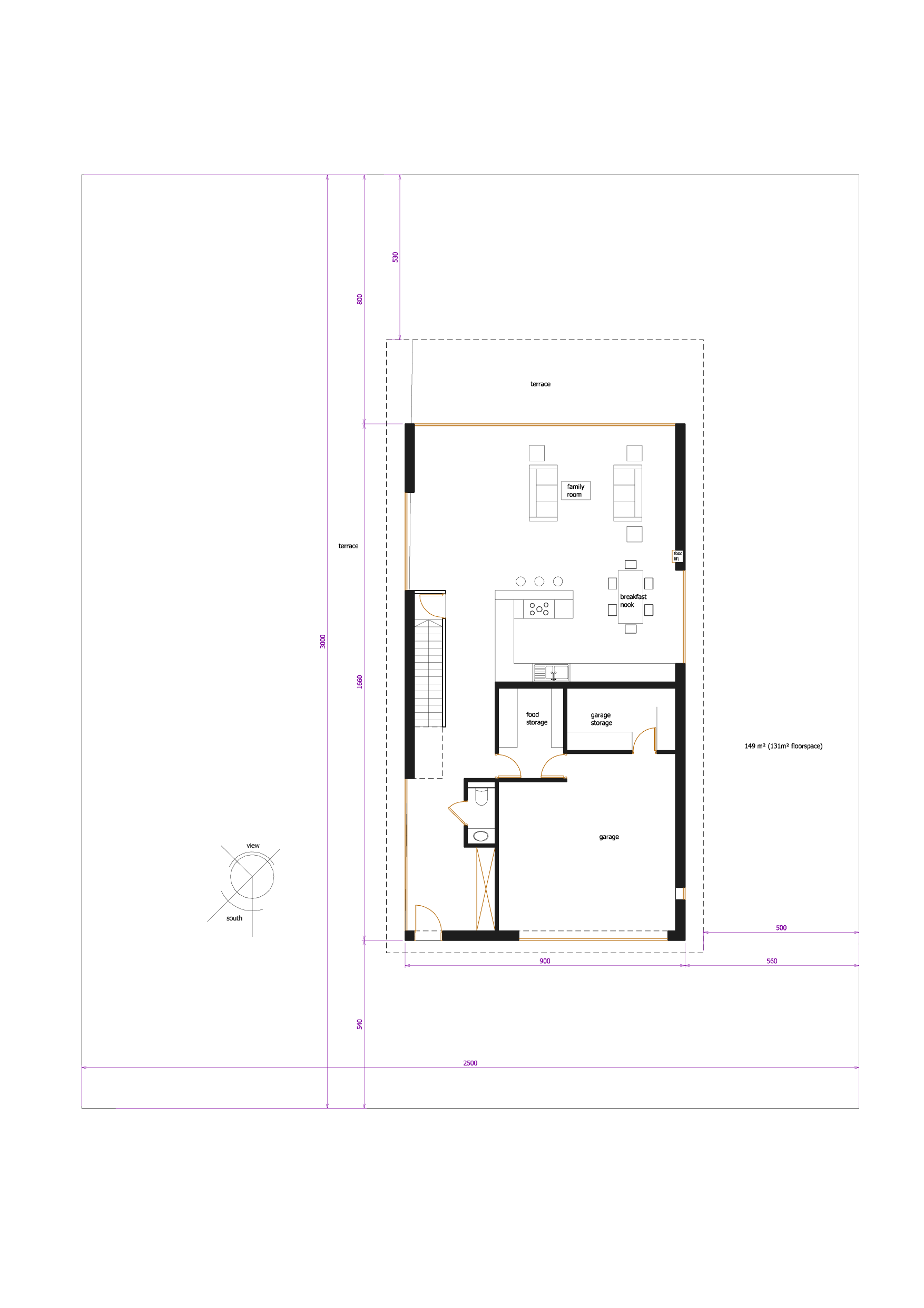
Proposals for villas in a suburb in Wincheringen, Germany. The design takes into account the stunning views of the valley by using floor-to-ceiling windows and positioning the living rooms accordingly.
Proposals for villas in a suburb in Wincheringen, Germany. The design takes into account the stunning views of the valley by using floor-to-ceiling windows and positioning the living rooms accordingly.